LH 부천옥길8단지 단지정보 및 주택형별 임대료 및 평면도
LH 부천옥길 8단지는 경기도 부천시 소사구 옥길동에 위치한 공공임대주택 단지로, 2019년 2월 15일에 사용 승인을 받았으며, 총 2개 동으로 구성되어 있습니다. 270세대가 입주할 수 있으며, 전용면적은 16.75㎡부터 36.3㎡까지 다양하며, 주로 대학생, 청년, 신혼부부, 고령자 등 다양한 계층을 위한 행복주택 유형으로 공급되고 있습니다.
LH 부천옥길8단지 위치, 지역조감도, 교통망도, 지구조감도 살펴보기
부천옥길 8단지는 경기도 부천시 소사구 양지로 151에 위치하고 있습니다. 단지 앞 바로 버스정류장 있으며, 가장 가까운 역은 역곡역으로 버스 타고 약 15분 정보 소요됩니다. 도보 10분 이내 거리에 중심 상업지구 편리하게 이용이 가능합니다. 해당 공고정보 관련 및 청약 방법에 관한 내용은 다음을 참고해 주세요.




LH 부천옥길8단지 단지정보




| 임대종류 | 행복주택 |
| 세대수 | 270세대 |
| 준공일 | 2018년 11월 30일 |
| 건물형태 | 혼합식 |
| 승강기 | 전체동 설치 |
| 난방방식 | 지역난방 |
LH 부천옥길8단지 주택평수별 임대조건
평형별 임대료
| 평형 | 세대수 | 임대보증금 | 월임대료 | 전환보증금 | 최대 전환시 임대조건 | |
| 임대보증금 | 월임대료 | |||||
| 16A | 96 | 27,540,000 | 110,160 | 10,000,000 | 37,540,000.. | 51,820 |
| 26A | 14 | 33,438,000 | 144,890 | 14,000,000 | 47,438,000 | 63,220 |
| 26B | 3 | 33,438,000 | 144,890 | 14,000,000 | 47,438,000 | 63,220 |
| 26C | 22 | 46,018,000 | 184,070 | 20,000,000 | 66,018,000 | 67,400 |
| 36A,A1-1 | 116 | 67,440,000 | 269,760 | 30,000,000 | 97,440,000 | 94,760 |
| 36 | 19 | 67,440,000 | 269,760 | 30,000,000 | 97,440,000 | 94,760 |
임대조건은 변동사항이 있으므로 정확한 임대조건은 공고문을 참고 바랍니다.
평형별 관리비
LH 부천옥길8단지 평수별 정보
16A형

| 전용면적 | 공용면적 | 공급면적 |
| 16.75㎡ | 8.96㎡ | 25.71㎡ |
26A형

| 전용면적 | 공용면적 | 공급면적 |
| 26.24㎡ | 14.04㎡ | 40.28㎡ |
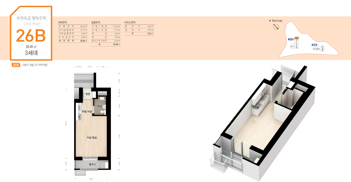
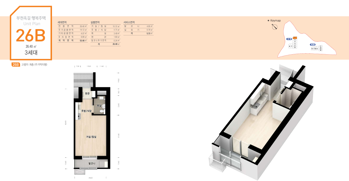
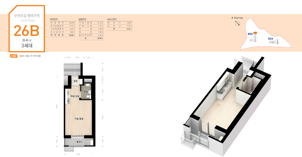
26B형

| 전용면적 | 공용면적 | 공급면적 |
| 26.40㎡ | 14.12㎡ | 40.52㎡ |
26C형

| 전용면적 | 공용면적 | 공급면적 |
| 26.49㎡ | 14.17㎡ | 40.66㎡ |
36A형, A-1형


| 전용면적 | 공용면적 | 공급면적 |
| 36.14㎡ | 19.33㎡ | 55.47㎡ |
36B, B-1형


| 전용면적 | 공용면적 | 공급면적 |
| 36.30㎡ | 19.42㎡ | 55.72㎡ |

댓글