LH 부천중동행복주택 단지정보 및 주택형별 임대료 및 평면도
LH 부천중동행복주택은 경기도 부천시 중동로 88에 위치한 공공임대주택으로, 총 26세대 규모로 구성된 9층짜리로 1개 동으로 구성되어 있습니다. 전용면적은 16.34㎡~36.79㎡로 구성되어 있습니다.
LH 부천중동행복주택 위치, 지역조감도, 교통망도, 지구조감도 살펴보기



부천중동행복주택은 중동역 역세권 근처로 도보 5분이내에 중동역 접근이 가능합니다. 바로 옆 부천서초등학교가 위치하고 있습니다. 자동차로 약 10분 거리에 송내 IC, 약 15분 거리에 부천 IC 접근이 가능합니다.
LH 부천중동행복주택 단지정보



| 임대종류 | 행복주택 |
| 세대수 | 26세대 |
| 준공일 | 2018년 12월 1일 |
| 건물형태 | 복도식 |
| 승강기 | 전체동 설치 |
| 주차수 | 12대 |
| 난방방식 | 개난방 |
LH 부천중동행복주택 주택평수별 임대조건
평형별 임대료
| 평형 | 전용면적 | 세대수 | 임대보증금 | 월임대료 | 전환보증금 | 최대 전환시 임대조건 | |
| 임대보증금 | 월임대료 | ||||||
| 16A,S | 16.34 | 12 | 21,390,000 | 89,120 | 4,000,000 | 25,390,000 | 65,780 |
| 36A | 36.79 | 14 | 50,920,000 | 229,140 | 23,000,000 | 73,920,000 | 94,970 |
해당 보증금과 임대료는 모집시기별로 상이하므로 정확한 임대료 정보는 공고문을 참고 필히 참고해야 합니다.
평형별 관리비
LH 부천중동행복주택 평수별정보
16A, S형(8.4평)


| 전용면적 | 공용면적 | 공급면적 |
| 16.34㎡ | 11.36㎡ | 27.70㎡ |
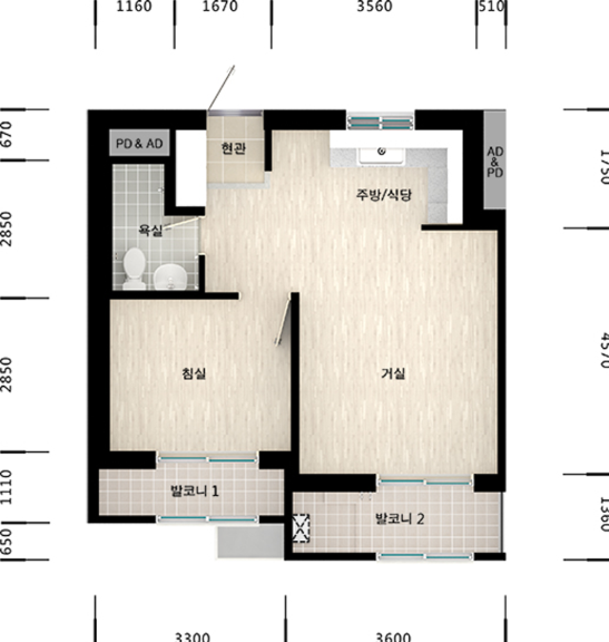
36A형(18.9평)

| 전용면적 | 공용면적 | 공급면적 |
| 36.79㎡ | 25.58㎡ | 62.37㎡ |

댓글